Skip to main content
  • XS 68 Okna aluminiowe, CW 65-EF Ściany osłonowe aluminiowe, ConceptSystem 77 Okna aluminiowe oraz CW 50-SC Ściany osłonowe aluminiowe - Congress center Etopia Centre for Art and Technology zlokalizowany w Zaragosa, Hiszpania
  • XS 68 Okna aluminiowe, CW 65-EF Ściany osłonowe aluminiowe, ConceptSystem 77 Okna aluminiowe oraz CW 50-SC Ściany osłonowe aluminiowe - Congress center Etopia Centre for Art and Technology zlokalizowany w Zaragosa, Hiszpania
  • XS 68 Okna aluminiowe, CW 65-EF Ściany osłonowe aluminiowe, ConceptSystem 77 Okna aluminiowe oraz CW 50-SC Ściany osłonowe aluminiowe - Congress center Etopia Centre for Art and Technology zlokalizowany w Zaragosa, Hiszpania
  • MCBAD/Colomer Dumont

Etopia Centre for Art and Technology

Zaragosa - Hiszpania - 2012

Centrum Sztuki i Technologii Etopia (Etopia, Centro de Arte y Tecnologia) w Saragossie, w Hiszpanii, ma przyjemną i lekką konstrukcję, a jednocześnie jest solidne i ma współczesny wygląd. Stanowi otwartą przestrzeń, gdzie mogą się spotykać artyści, inżynierowie i odwiedzający. Biuro architektoniczne MCBAD/Colomer Dumont zaprojektowało ten pełen ekspresji budynek łącząc w nim badania, sztukę, ekonomię, komunikację, kulturę i technologię.

Nawet lokalizacja budynku jest niesamowita. Etopia jest częścią La Milla Digital (Cyfrowej Mili), skupiska budynków i działalności w obszarze technologii mediów cyfrowych, które łączy centrum Saragossy z byłymi międzynarodowymi terenami ekspozycyjnymi. W samym środku tej konfiguracji znajduje się stacja szybkiej kolei Delicias. Etopia znajduje się bezpośrednio naprzeciw stacji i łączy się z nią za pomocą eleganckiego podwieszanego mostu dla pieszych. W ten sposób Etopia jest zakorzeniona w środowisku i tym samym połączona ze światem. Kompozycja budynku odzwierciedla potrzebę racjonalizacji, która stała się coraz bardziej wyraźna w Hiszpanii w ciągu ostatnich kilku lat. Kryzys finansowy i porażka wielu ekstrawaganckich i krzykliwych projektów doprowadziły do powstania tendencji od wierciedlającej ten stan rzeczy w architekturze. Architekci w MCBAD zawsze wykazywali preferencje do projektowania klarownych, regularnych brył, lecz w tym przypadku ich dzieło jest również nieomylnym odzwierciedleniem ducha epoki w Hiszpanii. Zastrzeżone wykonanie gwarantuje, że kompleks tworzy widoczną bryłę, nawet, gdy jest oglądany z daleka. Trzy bloki o porównywalnych proporcjach są połączone za pomocą dwukondygnacyjnego cokołu otwartego w kilku punktach i połączonego z parkiem otaczającym kompleks.

XS 68 Okna aluminiowe, CW 65-EF Ściany osłonowe aluminiowe, ConceptSystem 77 Okna aluminiowe oraz CW 50-SC Ściany osłonowe aluminiowe - Congress center Etopia Centre for Art and Technology zlokalizowany w Zaragosa, Hiszpania

Subtelne kontrasty pomiędzy różnymi fasadami

PRZESTRZEŃ DO SPOTKAŃ

Wewnątrz powierzchni użytkowej wynoszącej 16 000 m2 zostały utworzone duże dwukondygnacyjne obszary ukazujące, że budynek jest idealnym miejscem spotkań z innymi ludźmi. Stanowią otwartą przestrzeń, gdzie każdy, począwszy od ludzi biznesu, poprzez artystów do inżynierów może prowadzić warsztaty, komitety doradcze i sesje szkoleniowe oraz opracowywać i dzielić się pomysłami. Jest to również platforma dla nowo powstałych firm i początkujących przedsiębiorców. W tym celu stworzono serię pomieszczeń przeznaczoną do użytkowania przez nowe firmy, znajdujące się wokół holu wejściowego i audytorium, których charakter zmienia się stopniowo: od publicznie dostępnych do bardziej prywatnych. Ta elastyczność i nieformalność mają na celu stymulowanie procesu wzajemnego inspirowania się wśród przedsiębiorców oraz zwiększenie i ułatwienie kontaktów z potencjalnymi klientami. W ten sposób liczy się na to, że klimat społeczny będzie mieć pozytywny wpływ na klimat ekonomiczny. Istnieją subtelne różnice pomiędzy różnymi fasadami. W dwóch blokach elementy szklane występują naprzemiennie z aluminiowymi panelami fasady, podczas gdy blok trzeci otoczony jest ścianą kurtynową wykonaną z matowego szkła.

 

Elementy fasad wszystkich trzech brył są ujednolicone dzięki temu, że wskazują na wymiary różnych kondygnacji. To modularne odwzorowanie jest głównym czynnikiem zapewniającym industrialno-technologiczny klimat kompleksu. Jest on wyrazem racjonalnego, gwałtownego wykonania budowli, lecz jednocześnie ta demarkacja szklanych powierzchni nie jestłatwa do uzyskania za pomocą standardowych rozwiązań. Do tego projektu użyto profile, które opierają się na strukturalnej szklanej fasadzie Reynaers CW 65, lecz które wymagały większej głębokości, aby utrzymać tak samo wąską 65-milimetrową szerokość. Konstrukcja również wymagała dodatkowego zakotwienia szklanych paneli, które biegną od podłogi do sufitu. Ogólnie mówiąc, te eleganckie fasady ze swoimi cichymi, lecz dominującymi szklanymi powierzchniami tworzą takie wrażenie lekkości, że nawet te fasady, które są bardzo mocne nie wydają się ciężkie.

DOSTĘPNE I LEKKIE

Poczucie dostępności jest maksymalne na parterze, który charakteryzuje się otwartymi elementami. To uczucie jest niezbędne dla korporacyjnego wizerunku centrum Etopia, które ma ważną publiczną rolę do odegrania jako inkubator kreatywności. Z tego powodu, cokół w większej części składa się ze szklanych powierzchni, które zawierają elementy odbijające promienie słoneczne, w mniejszym lub większym stopniu. W przypadku górnych kondygnacji, również było bardzo istotne, aby ramy okienne wyglądały na tak delikatne, jak to tylko możliwe. Uwzględniając to, profile okienne Reynaers CS 68-HV zostały zastosowane w taki sposób, że gdy są oglądane z zewnątrz, części ruchome całkowicie znikają za nieruchomą ramą.

To nie pierwszy raz, gdy obszar dawno minionego expo początkowo przedstawiał przygnębiający obraz. Władze miasta Saragossa zwróciły uwagę na konieczność zmiany tego miejsca na kolebkę kipiącą aktywnością. Ewidentne jest, że projekt ten jest punktem centralnym dla miejscowej ludności, jak również dla tych, którzy jeżdżą szybką koleją do Saragossy. Połączenie ekonomii i sztuki, badań i otwartości, oraz przemysłu i kreatywności może na pierwszy rzut oka wydawać się sprzeczne; jednak to właśnie ten ukazuje siłę projektu. Ekspresja architektoniczna budynku rzeczywiście daje tę możliwość.

XS 68 Okna aluminiowe, CW 65-EF Ściany osłonowe aluminiowe, ConceptSystem 77 Okna aluminiowe oraz CW 50-SC Ściany osłonowe aluminiowe - Congress center Etopia Centre for Art and Technology zlokalizowany w Zaragosa, Hiszpania

Pieszy most łączy Etiopię z umiejscowioną na przeciwko stacją

XS 68 Okna aluminiowe, CW 65-EF Ściany osłonowe aluminiowe, ConceptSystem 77 Okna aluminiowe oraz CW 50-SC Ściany osłonowe aluminiowe - Congress center Etopia Centre for Art and Technology zlokalizowany w Zaragosa, Hiszpania

CW 65-EF-SG specjalne rozwiązanie fasady

Project solution

 

Systems:

  • Bespoke solution based on CW 50 curtain wall

Project description:

An extremely large span called upon a custom-made development

  • 250 meters long x 15 meters high façade without an intermediary support
  • Façade needed to be as transparent as possible whilst avoiding deflection:
  • ° Profile width: 70 mm
  • ° Width of outside profile cap: 50 mm
  • ° Profiles connected to a slim steel structure that is fully clad on the inside with stainless steel caps
  • ° Reinforcement via 4 glass fins per façade module of 2 meters wide (each module has 4 elements on top of each other)
  • ° Tension bars are placed behind the glass fins for extra strength, stiffness and leveling of the sockets

Glass fins:

  • 650 mm deep x 40 mm thick (3 sheets of 12 mm layered glass with PVB film in between)
  • Fins are glued in an aluminium profile and then mounted on the slim steel structure
  • Weight: 225 kg per fin, 900 kg in total per module

Elements:

  • 4 elements per module
  • 75 m high x 2 meters wide
  • Total weight of 1 glazing module incl. steel structure, profiles and fins: 3.7 tonnes

Glazing:

  • Double layered glazing with a thickness of 46.5 mm (66.2/16/88.4)
  • Burglary and explosion resistant
  • Weight: 530 kg per element

Testing:

  • Air-Wind-Water tests in the Reynaers Institute
  • Water tightness up to 600Pa
  • Wind tightness (deflection) up to 1200Pa
  • Safety test up to 1800 Pa
  • ° 5 kN per elements
  • ° 54 kN per module

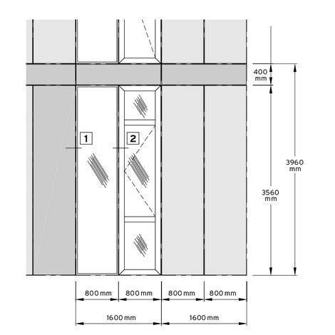
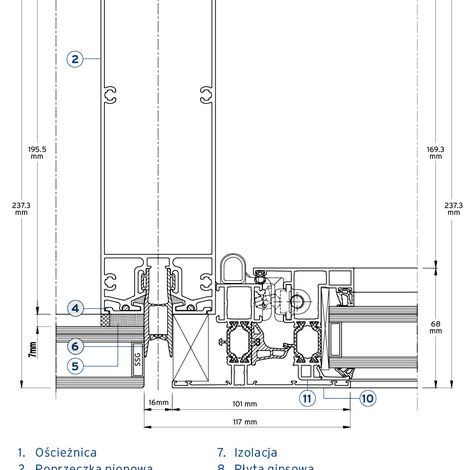
Sekcja 1: CW 65-EF/SG –poziomy przekrój rygla

Sekcja 2: CW 65-EF/SG pionowy przekrój rygla z CS 68-HV

Involved stakeholders

Architect

  • MCBAD/Colomer Dumont

Fabricator

  • Eurosca

Fotograf

  • Wenzel

Inny interesariusz

  • UTE Sacyr, S.A.U. (General contractors)
  • Ayuntamiento de Zaragoza (Investors)
  • Sander Laudy (Authors)